 |
 |
 |
 |
 |
 |
|
 |
|
 |
|
 |
|
|
|
 |
|
|
|
 |
|
|
|
 |
|
● Ortung von Wassernetzen (Versorgungs- und Hausanschlussleitungen sowie Markierung der Hauseintrittspunkte)
● Vermessungstechnische Außenaufnahme der georteten und sichtbaren Elemente
● Übernahme und Aufbereitung der Daten (Dimension, Material, Leitungsabschnitte, Leitungsobjekte) zur Übergabe in das GIS-System
|
|
|
|
|
● Hydraulische Berechnungen des Wassernetzes nach dem Berechnungsmodell der Hochut-Software.
● Digitalisierung / Ergänzung aus vorhandenen Bestandsplänen und Einarbeitung in die Wasser-Datenbank.
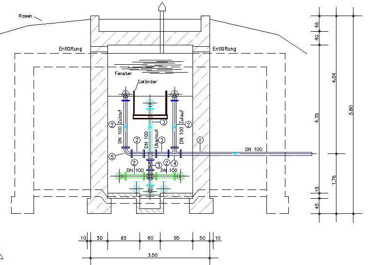
● Vermessung und CAD-Darstellung von Hochbehältern, Tiefbrunnen und anderen Wassergewinnungsanlagen.
● CAD-Planerstellung
|
|
|
|
 |
|